




Glas – die perfekte Wahl für Eleganz.
Glas – die perfekte Wahl für Eleganz.
Set mit Beschlag und Türblatt (ohne Griff)
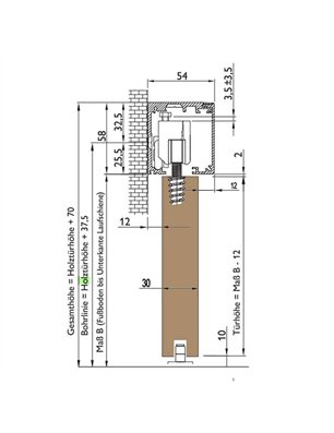
Türblatt aus 30 mm mitteldichter Holzfaserplatte
einfache und schnelle Montage
Sondermaß möglich (auf Anfrage)
DIN Rechts und Links einbaubar
mit beidseitigem Softclose
Passende Griffe finden Sie hier

Sondermasse hier Angeben
| 1 | - | Bitte Tragen Sie in die Felder unten Ihre Maße ein |
| 2 | - | Klicken Sie anschließend auf "Speichern" |
| 3 | - | Wählen Sie Ihre gewünschten Varianten aus |
| 4 | - | Legen Sie Ihren Artikel in den Warenkorb. |
Die Holzschiebetür Slim-Line - Geometrie Model 3033 ist die perfekte Wahl für Designliebhaber.
Das raffinierte geschlossen hängendes, edelstahlfarbig eloxiertes schiebetürsystem mit softclose beidseitig und geringer Bauöhe bringt eine moderne Note in Ihr Zuhause.
Mit dem Bunte Geometrische Motive in 3d optik entsteht ein harmonisches Zusammenspiel von Farben und Materialien, das jeden Raum aufwertet.
Ob in Standard- oder Sondermaßen – das Viele Maße zur auswahl, aber auch Sondermasse sind möglich.
30 mm Starke Voll-MDF Platte, mit UV Digitaldruckmotiv.
bietet maximale Flexibilität.
Die elegante Weiss Kante und das praktische zweiflügelig Format setzen Ihre Einrichtung gekonnt in Szene.
Türblatt aus 30 mm mitteldichter Holzfaserplatte
einfache und schnelle Montage
Sondermaß möglich (auf Anfrage)
DIN Rechts und Links einbaubar

Technische Daten
Besondere Bestellnummern
Holzschiebetüren sind eine ausgezeichnete Wahl für moderne Haushalte und bieten eine optimale Lösung für platzsparende, stilvolle Türdesigns. Besonders Modelle wie die **Slim-Line** überzeugen durch ihr minimalistisches Design und schaffen einen eleganten Übergang zwischen verschiedenen Bereichen Ihres Hauses. Sie tragen nicht nur zur Verbesserung des Raumflusses bei, sondern verleihen Ihrem Zuhause auch eine zeitlose und hochwertige Ausstrahlung.
Beim Digitaldruck auf Holz wird ein modernes Verfahren eingesetzt, bei dem ein Drucker mit spezieller Tinte verwendet wird, um Bilder oder Designs direkt auf die Holzoberfläche zu übertragen. Die Tinte wird dabei so formuliert, dass sie eine starke Haftung auf Holz gewährleistet und die natürliche Struktur des Holzes erhalten bleibt.
Die beim Digitaldruck auf unseren Holzschiebetüren verwendete Tinte wurde speziell entwickelt, um optimal auf der Holzoberfläche zu haften und eine langanhaltende Haltbarkeit sowie brillante Farbqualität zu gewährleisten.
Der Digitaldruck auf Holz zeichnet sich durch eine hohe Haltbarkeit aus. Die speziell entwickelte Tinte sorgt dafür, dass die Farben auch bei längerer Nutzung nicht verblassen. Zusätzlich schützt eine Versiegelungsschicht die Druckoberfläche vor Kratzern, Feuchtigkeit und UV-Strahlen, wodurch die Lebensdauer des Designs erheblich verlängert wird.
Der Digitaldruck auf Holz ist dank moderner Technologien und schützender Oberflächenbehandlungen sehr widerstandsfähig gegen Kratzer. Nach dem Druckprozess wird häufig eine spezielle Versiegelungsschicht aufgetragen, die die Farbschicht vor mechanischen Belastungen schützt. Diese Schutzschicht sorgt dafür, dass die Farben nicht abblättern und das Design auch bei intensiver Nutzung lange erhalten bleibt. Dennoch empfiehlt es sich, scharfe oder harte Gegenstände von der Oberfläche fernzuhalten, um die Lebensdauer des Drucks weiter zu maximieren.
Die Pflege und Reinigung von Digitaldrucken auf Holz ist unkompliziert und erfordert keine aggressiven Reinigungsmittel wie Alkohol oder Lösungsmittel. Für die Reinigung genügt ein weiches, leicht angefeuchtetes Tuch, um Staub und Schmutz sanft zu entfernen. Es wird empfohlen, keine scheuernden Materialien oder chemischen Reiniger zu verwenden, da diese die Oberfläche beschädigen könnten. So bleibt der Druck langfristig geschützt und in einwandfreiem Zustand.
Nach Einstellung des Monitors werden Farben satter oder schwächer dargestellt. Am Bildschirm werden die Bilder aus rotem, grünem und blauem Licht kombiniert. Beim Druck wird mit Tinte in verschiedenen Farben kombiniert, daher gilt immer die Regel, dass das Produkt von der Abbildung abweichen kann.
In diesem Video zeigen wir Ihnen Schritt für Schritt, wie Sie die Slim-Line Schiebetürbeschläge korrekt messen und montieren. Mit der richtigen Vorbereitung und Montage sorgt Ihr Schiebetürsystem für eine reibungslose Funktion.